NextGen Eco Houses
Office Spaces

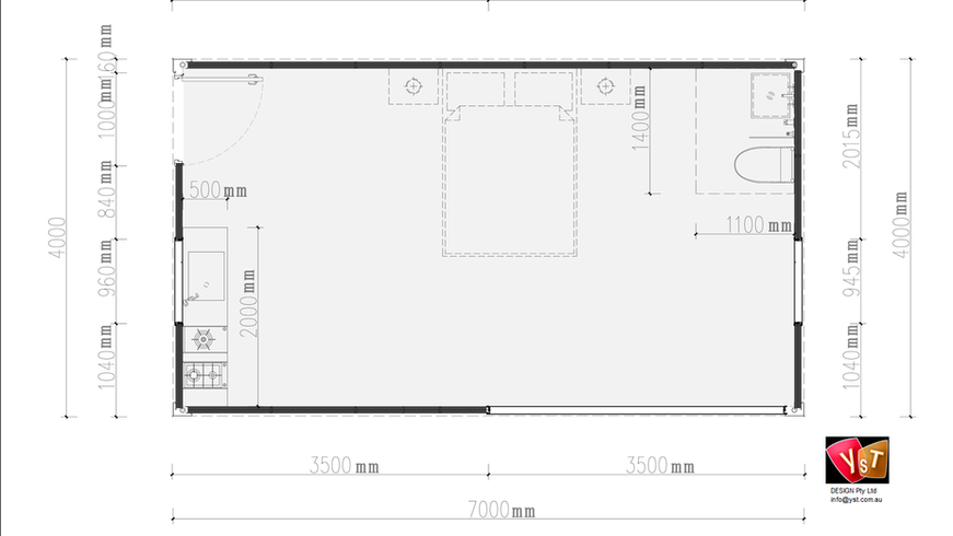
AustralianHouses (by Plenty Nest Pty Ltd) specializes in eco-friendly modular container homes and offices based in Melbourne. They offer customizable “plug-and-play” designs with ready-made bathroom and kitchen modules, making setup quick and efficient. Ideal for sustainable living or workspace solutions with minimal installation hassle.

About

We turn your dream houses or offices into a reality!
AustralianHouses offers modular, eco-friendly container homes and offices with customizable, plug-and-play designs built for modern living.

AustralianHouses, operated by Plenty Nest Pty Ltd, focuses on innovative modular living through smart container-based designs. Their solutions are tailored for individuals and businesses seeking efficient, low-impact housing or workspace options. Built with sustainability and flexibility in mind, each unit is designed to simplify setup while maximizing comfort.

From compact granny flats to modern site offices, AustralianHouses offers a range of pre-fabricated modules with integrated features like kitchens and bathrooms. With a commitment to quality and adaptability, they help clients create functional spaces that meet today’s evolving lifestyle and professional needs.

Projects

Explore our featured projects showcasing design, innovation, and excellence.

Discover our curated collection of innovative projects, highlighting tailored design solutions, expert craftsmanship, and client-focused results across residential, commercial, and custom-built spaces throughout Australia.

Design Inspiration

Discover our exclusive property listings

Custom Offices

We offer completely custom options to fit your needs

You can purchase modules and plug them into your living or kitchen spaces.

Blog

Discover Smart Living with Modular Home Tips & Ideas

Renovations announced

Renovations announced

We can renovate your existing property to make your dreams bigger and better.

Our inside secrets

Our inside secrets

We use Australian certified materials, qualified building professionals with licensed trades people to design your houses, apartments or offices.

Coming up

Coming up

When it comes to design, we are the pioneers in the building and construction industry.

CONTACT US

Have questions or ready to start? Contact us today—we’re here to help you build your ideal modular space.

Please enable JavaScript in your browser to complete this form.
Scroll to Top